卧式镗铣加工中心提案

2026-02-27

注塑机/压铸机模板

pa1

中小型模板:BTH机型


大型模板:BSF机型

加工对象工件:普通成型机模板

dp2
pa3

使用芝浦机械BTH机型的长鼻端主轴规格更适合成型机模板的导向孔和绞耳孔加工

提案机型:单工作台卧式镗铣床

pa4

机床规格: BTH-110.R18
工作台前后移动 X 2500mm
主轴头上下移动 Y 2000mm
立柱左右移动 Z 1500mm
主轴伸出量 W 500mm
工作台大小 1400×1800mm
工作台载重 10000kg


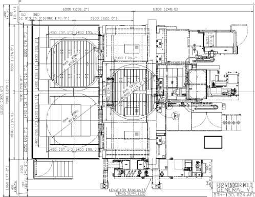
机床规格: BTH-130.R24
工作台前后移动 X 3000mm (3500)
主轴头上下移动 Y 2300mm (2540)
立柱左右移动 Z 1500mm
主轴伸出量 W 700mm
工作台大小 2000×2400mm
工作台载重 20000kg
( )中为可选规格

提案机型:双工作台卧式镗铣床

pa5

机床规格: BTH-110.R18(APC)


工作台前后移动 X 2500mm
主轴头上下移动 Y 1700mm
立柱左右移动 Z 1500mm
主轴伸出量 W 500mm
托盘大小 1400×1800mm
工作台载重 7000kg

pa6

机床规格: BTH-130.R24(APC)

工作台前后移动 X 3000mm (3500)
主轴头上下移动 Y 2000mm (2240)
立柱左右移动 Z 1500mm
主轴伸出量 W 700mm
托盘大小 2000×2400mm
托盘载重 15000kg
( )中为可选规格

加工对象工件:大型压铸机模板

dp7

主要运用于4400T以上的大型压铸机模板

提案机型:落地式镗铣床

dp8

対象机型:BSF-150C


立柱前后移动
X 4500mm~18000mm (每1500mm一节)
主轴上下移动
Y 2000mm~4500mm(每500mm一节)
滑枕左右移动
Z 900mm
镗杆伸出量
W 900mm
镗杆直径 150mm
滑枕截面大小 380x380mm
主轴转速 S10~S3000min-1

( )中为可选规格

业务咨询:
芝机机械贸易(上海)有限公司
上海市莘庄工业区金都路4788号2楼
电话:021-54420606/13761268651
姜先生

logo

页面顶部